Perspective
Rez-de-chaussée
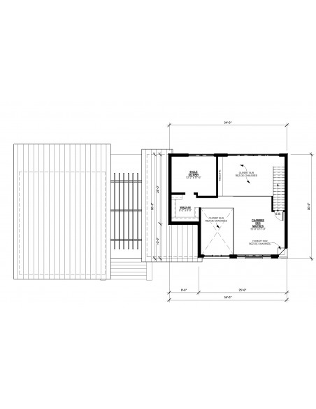
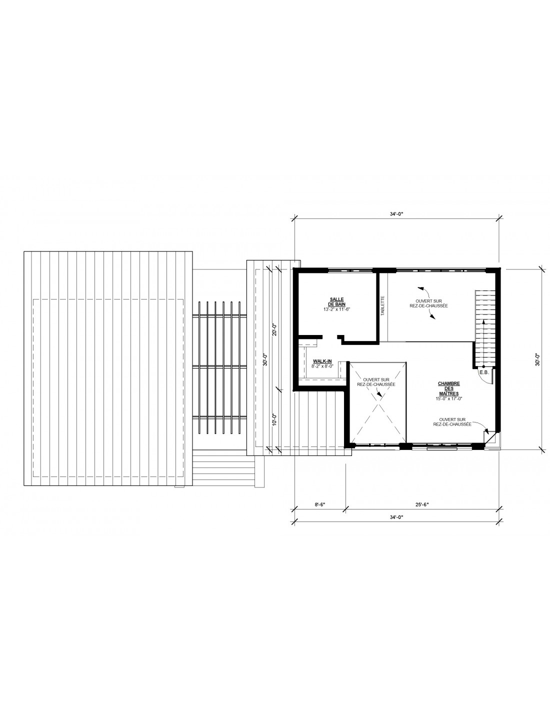
Étage
Perspective
Rez-de-chaussée
Étage

Maison - La piedmont

Personnalisation

N'oubliez-pas de sauvegarder vos modifications pour pouvoir l'ajouter à votre panier
  • Optionel 250 car. max
  • Optionel 250 car. max
1 699,00 $
HT
Modifier le plan

À propos de la boutique: TY-BO design architecture
Produits : 7
Suiveur : 1
Date créée: 24/07/2020
Taux de réponse: 20%
Contacter la boutique

Personnalisation de produit

Ne pas oublier d'enregistrer votre personnalisation pour pouvoir ajouter au panier
Choisir une option
PDF seulement (0 $)
PDF + 5 copies papier (75$)
PDF + 10 copies papier (150$)
Choisir une option
Originale (+ 0$)
Inversé (+ 150$)

Description

Voici une maison de style contemporaine arborant un côté brute. Elle possède une suite des maîtres privée à l'étage et une grande aire de vie au rez-de-chaussée. Son grand garage isolé comportant une aire de jeu saura ravir les amateurs de bon temps.

Détails du produit

Étage
2 étages
Style architectural
Contemporain
Coût de construction (approx.)
500 000$ et +
Nombre de chambres
3
Salle de bain complète
2
Stationnement
2 véhicules
14010201
Nouveau

4 autres plans dans la même catégorie :